陕氢绿源公司打造百万吨级氢源基地,共创氢能美好未来

来源:陕氢绿源公司 | 作者:榆氢网 | 发布时间 :2025-09-29 | 664 次浏览: | 🔊 点击朗读正文 ❚❚ | 分享到:

陕西氢能绿源科技有限公司成立于2025年7月28日,注册资金2亿元,是陕西氢能产业发展有限公司的全资子公司,位于陕西榆林榆横工业园区。作为陕西氢能布局氢能全产业链的核心平台,公司以“双碳”目标为引领,聚焦氢能技术创新与产业生态构建,着力发展新质生产力,拓展氢能新赛道,引导氢能产业集聚,致力于打造集技术研发、绿氢制备与应用示范于一体的氢能产业高地。

公司目前主要负责榆林零碳产业园氢能(制氢)示范项目的建设与运营。项目位于榆横工业园区,规划总投资约205亿元(含配套新能源和储能项目),其中,制氢单元占地面积约300亩,总投资约6.9亿元。项目分两期推进建设,建成后将成为区域零碳能源产业发展标杆工程。该项目充分依托榆林当地丰富的光伏风电绿电、矿井疏干水等核心生产要素,采用周边煤矸石砖作为建设基材,从源头保障“零碳属性”,践行循环经济理念。项目紧密衔接国家能源政策导向与前沿技术趋势,深度融合绿电直连、峰谷调节、储能、虚拟电厂等政策红利与技术突破成果,为项目高效建设、稳定运营筑牢坚实基础。

1.png

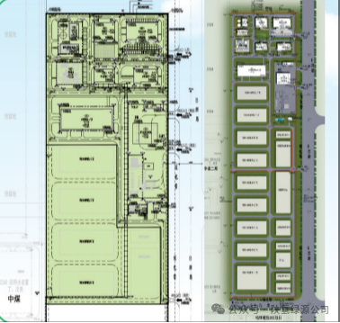
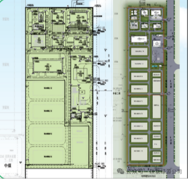
榆林零碳产业园氢能(制氢)示范项目一期工程选址在中煤二期项目东侧、城投佰盛项目北侧,能够充分利用周边资源,借助城投佰盛的公共管廊、二氧化碳,以及中煤的蒸汽、氮气等公辅配套,产出的氢气可直接供给中煤等煤化工企业作为生产原料。一期工程以“揭榜挂帅”形式优选3台每小时1000标方的碱性(ALK)电解槽、2台每小时500标方的质子交换膜(PEM)电解槽,另外选择1台由陕氢超燃动力科技有限公司自主研发制造的每小时100标方的固体氧化物(SOEC)电解槽;氢气生产规模为每小时4100标方,年制氢量3000吨,年产值7500万元,年减排CO₂约6万吨。同时,项目还配套建设每小时5000标方的电解槽测试平台,目前是西北区域规模最大;可用于电解槽系统性检测与验证,既能满足公司内部检测需求,也可承接外部检测任务。一期工程已于2025年8月1日全面开工,力争2025年12月31日产出合格氢气。

二期工程秉持“成熟一个、测试一个”的项目建设理念,通过一期工程示范,优选低能耗、高安全性的制氢工艺,预计二期氢气生产规模将提升至每小时20万标方,年制氢量可达10万吨,年产值约25亿元,年减排CO₂约200万吨‌。二期工程预计2026年开工,2028年竣工投产。

2.png
3.png

榆林零碳产业园氢能(制氢)示范项目未来氢气消纳市场主要有三个方向:一是聚焦交通用氢场景。榆林周边煤炭、化工等大宗商品短途倒运需求旺盛,为氢能交通应用提供了广阔市场空间,依托自有运力资源,实现氢气从生产端到应用端的高效输送。二是深耕工业用氢领域。借助周边中煤陕西公司等煤化工企业的集聚优势,构建稳定的工业用氢供应链条。三是拓展深加工用氢赛道。与周边企业深度耦合,进一步延伸产业链,通过绿氢生产绿氨、绿醇,切实保障氢气“产得出、用得掉”。

4.png

陕西氢能绿源科技有限公司将牢牢把握陕西省绿电直连专项优惠政策,为产业降本增效提供支撑,依托峰谷调节等领域的技术储备,形成“政策+技术”的双重组合,打造绿氢项目不可替代的经济性优势。


免责声明:凡本网注明"来源:榆氢网"的作品,均为本站原创,转载请注明“来源:榆氢网”!凡本网注明“来源:XXX(非榆氢网”的作品,均转载自其它媒体和互联网,转载目的在于传递更多信息,内容仅供参考、【榆氢网】不保证信息的准确性、有效性、及时性和完整性、用户在使用时应自行承担风险

如用户发现网站上有侵犯其知识产权的作品,请及时与【榆氢网】联系,我们将及时修改或删除。

联系方式:

-电话:[18992227559]

-邮箱:[md@sxdbd.com]